- トップページ
- アパートをエリアから探す
- 足柄下郡湯河原町
- 中央
- サザンテラス 102号室





日当りの良いアパート!駅徒歩圏内で買い物便利の好立地!
担当スタッフより

- 北井 克典
- 湯河原町中央地区にあるハウスメーカー施工のアパート!
駅徒歩圏内で買い物便利の好立地、LDK約12帖のゆとりある広さです!
和室の収納は2間分でたっぷりあります♪
物件詳細情報
物件No.4000560597
| 所在地 | 神奈川県足柄下郡湯河原町中央1丁目 | ||
|---|---|---|---|
| 交通 | 東海道本線「湯河原」駅徒歩9分 | ||
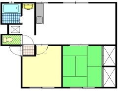
| 間取 | 2LDK (洋室5.5帖、和室6帖、LDK12帖) | ||
| 専有面積 | 52m² | ||
| バルコニー面積 | 南向き | ||
| 敷金 | 2ヶ月 | 礼金 | なし |
| 更新料 | 14,300円 | 住宅保険 | 要 23,000円/2年 |
| 契約期間 | 2年 | 駐車場 | 敷地内にあり無料 |
| 構造・規模 | 軽量鉄骨造 2階建て 1階部分 |
築年月 | 1991年4月(築34年) |
| 現況 | 賃貸中 | 入居時期 | 相談 |
| 取引態様 | 専任媒介 | ||
| 備考・制限等 | 賃料保証会社との保証委託契約必須(日本セーフティまたは日本賃貸保証) 保証料は契約時賃料の50%、更新保証料年額10,000円 借家人賠償保険要加入(東京海上ミレア少額短期保険) 保険料は23,000円/2年 |
||
こだわり項目
バス・トイレ別室内洗濯機置場1階の部屋
- ※制作中に内容が変更される場合もありますので、あらかじめご了承ください。
- ※契約の前には物件内容や契約条件についてご自身で十分な確認をしていただくようにお願いいたします。
- ※間取図は現況を優先とさせていただきます。
周辺地図
周辺施設一覧
- ショッピングセンター
- スーパー
- コンビニ
- ドラッグストア
- ホームセンター
- 飲食店
- その他店舗
- 商店街
- 大学
- 専門学校
- 高校・高専
- 中学校
- 小学校
- 保育園
- 幼稚園
- 公民館・児童館
- 病院
- 郵便局
- 役所
- 図書館
- 金融機関
- 警察・消防
- 趣味・娯楽施設
- 公園・運動施設
- 周辺の街並み
- 駅
- その他
お問い合せ先
- 株式会社エス・シーリビング
- お電話でのお問い合わせは
0120-621617「ホームページを見た」とお問い合わせください - 神奈川県足柄下郡湯河原町土肥5-3-7
- 営業時間:9:00~18:00
- 定休日:水曜日・祝日
- 免許番号:神奈川県知事免許(7)第21188号
- 許認可番号:建設業 神奈川県知事免許(般-7)第63661号 賃貸住宅管理業 国土交通大臣(02)第000086号
- トップページ
- アパートをエリアから探す
- 足柄下郡湯河原町
- 中央
- サザンテラス 102号室







